Property Surveys

A PlanDwell survey is always a comprehensive and in depth, inspection, followed by issue of a detailed Property Condition Report, that aims to be the best value for money.

As such, it is applicable for any size, age or type of dwelling and will give you a complete understanding of the condition of all elements of the property you are looking to purchase, as well as including photographs at no additional cost, along with a review of the property value against other recently sold properties.

Architectural Drawings

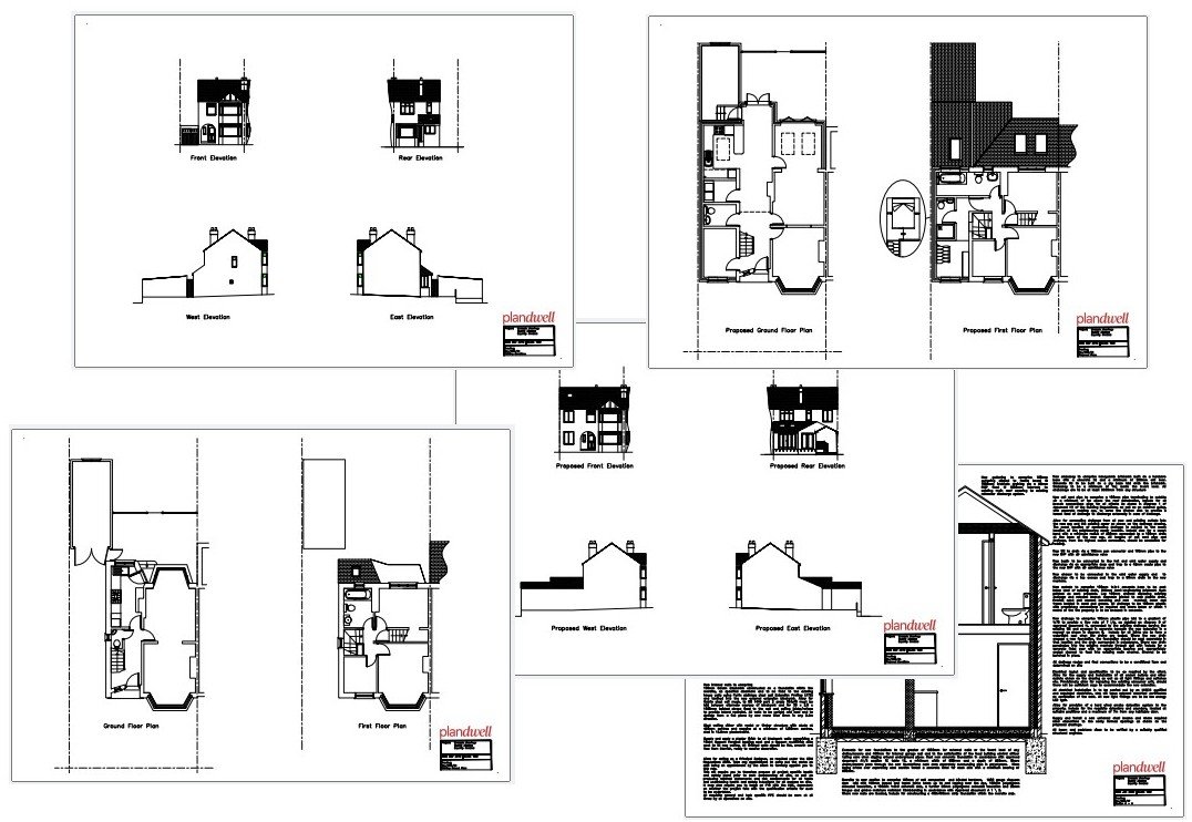
With over 30 years experience providing drawings for small scale construction projects from small porch extensions to multiple housing schemes, all information is provided with precision, having undertaken a detailed measured survey of the property in question.

As well as provision of existing and proposed drawings, sectional drawings are also provided with building regulations and additional notation to enable builders quotations to also be obtained.

Project Management

With over 25 years experience as project manager, Martin is has worked on a variety of project types, complexities and sizes, including on school, retail, hospital, residential, commercial and historic properties, ranging from less than £1m up to over £40m in value.

His clear communication style enables all parties involved in the project to comprehend sometimes complex and involved matters and ensure that all people involved have the necessary understanding of the technical and contractual factors involved in the undertaking of a project.

Additionally, he is always on the pulse of progress and quality of construction and works tirelessly on behalf of the client to ensure that all parties perform as expected throughout.

Inquiry Form